Features
- Sign at the corner of 4th and Louisianna
- 7 day programmable thermostat
- Modern lobby with lots of natural light
Contemporary Interior – No Build Out Necessary – Ready to Move In
- Unique windows in offices to let natural light in
- Wood base boards and 5 panel wood doors
- Second office has a window which gives it an open feeling
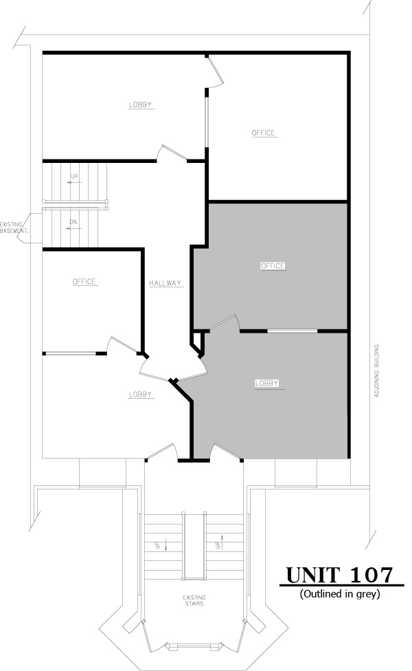
Suite 107 Layout
