Features
- Sign above door facing 4th Ave
- 7 day programmable thermostat
- ADA compliant
Traditional Interior – No Build Out Necessary – Ready to Move In
- Unique windows in offices to let natural light in
- Sound absorbant ceiling tiles
- Brand new – be the first to rent
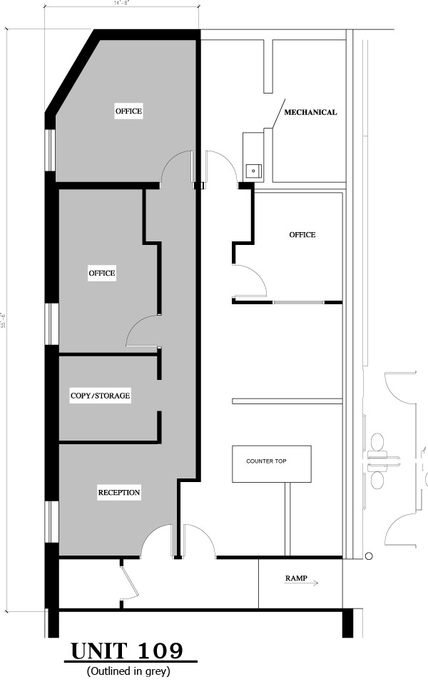
Suite 109 Layout
